GRADE:Â A
CLASS: Design Communications III
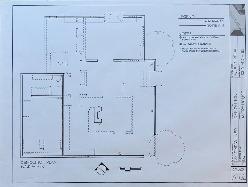
SCOPE: Develop a concept to remodel an existing floorplan & create a set of orthographic projections rendered in color.















GRADE:Â A
CLASS: Design Communications III
SCOPE: Develop a concept to remodel an existing floorplan & create a set of orthographic projections rendered in color.














